Qu’est-ce que la one de Novy
La marque Novy déjà réputée pour son aspiration, nous propose donc d’associer à cette expertise, une table induction de 4 zones de cuisson octogonales qui peuvent se regrouper (zone Flex ou combinée) pour les plus grands plats. Et cette fois-ci, la table de cuisson semble être une table induction de qualité.
La plaque de cuisson est noire, tout comme la hotte, avec des contrôles L.E.D. blanc, garantissant discrétion et sobriété. Elle s’intègre au plan de cuisson pour y disparaitre à fleur.
Une hotte de plan qui s’installe facilement
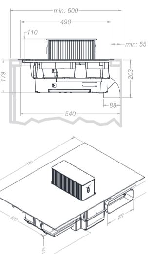
Pour les poseurs de cuisine, cette hotte de plan sera
probablement un pur bonheur, puisqu’elle s’installe très facilement en mode plug-and-play
dans un plan de travail standard. Tous les éléments se retirent simplement, et se
nettoient au lave-vaisselle. Pour l’installation de l'évacuation. Nous mettrons cet article à jour après le SADECC 2015 ou la foire de paris 2015.
A gauche un schéma de l'autre hotte de plan Novy, la Up Side.
Performance de l’ensemble hotte + plaque Novy
Nous n’avons pas pour le moment les caractéristiques
précises de la hotte, mais nous pouvons vous dire que la table de cuisson
dispose de 4 zones combinables par deux pour 3700W en boost par
foyer. Ce n’est donc pas une table très puissante, mais,
connaissant Novy (et son fournisseur), cette table sera robuste et facile d’utilisation.
Voici la dernière hotte Novy, présentée en Belgique, et que nous verrons probablement au SADECC 2015. Voyons ce que nous pouvons dire de cette hotte de plan Novy pour le moment.
Nous pouvons également parier sur une autre qualité qu’aura certainement cette hotte One : le Silence
Les hottes de plan n’ont pas pour qualité d’être silencieuse, car tout dépend du moteur. Nous sommes donc curieux de voir ce que Novy a mis en œuvre pour garder les bons ratio performance/bruit auxquels ils nous ont habitués.

Petite vidéo à venir pour le lancement officiel au printemps 2016
Petite intervention du directeur France NOVY
https://blog.jlm-diffusion.com/public/video/Novy/hotte-novy-one-sadecc2015.flvConclusion
voici un concept intéressant pour les configuration de cuisine avec une problématique de place. Novy propose donc l'association d'une induction 1773 avec une hotte efficace pour aspirer rapidement les vapeurs au plus près de de vos poêle et casseroles.
Sur le même sujet, voici un article sur les hottes encastrées
Edit Novembre 2015
La hotte integrée à la plaque de cuisson Novy One sort officiellement au printemps 2016.
Dispo chez votre grossiste préféré :), dès avril 2016
Nouveau site internet officiel juste pour la hotte novy one : https://novyone.fr/
Edit 23/01/2016
La hotte Novy One sera vendue à 3299 Euros TTC prix public

--
Dernière mise à jour :

8 réactions
1 De Anne-So - 04/11/2015, 10:05
Bonjour,
avez-vous plus d'informations sur les caractéristiques de cette hotte et quand celle-ci sera disponible à la vente?
Merci de votre réponse et félicitations pour votre site!
2 De Ron - 30/12/2015, 16:05
Bonjour,
Quel sera le prix de vente de la ONE svp ?
Merci et cdt
3 De Marie - 20/01/2016, 19:56
Bonjour,
Pouvez vous nous dire si maintenant elle est disponible,et a quelle prix ?
Merci
4 De geraldine - 02/03/2016, 23:09
bonjour pouvez vous me dire ou trouver cette plaque hotte car je souhaiterai l'acheter je me trouve dans les alpes maritimes merci par avance installation prévue fin avril ainsi que son prix
cordialement
5 De Magali - 06/05/2016, 18:06
Bonjour, la One de Novy est-elle enfin sortie ?
Je dois passer commande d'une cuisine et on me propose la Bora Basic. Je ne sais pas quoi faire...
6 De zeude - 08/10/2016, 08:24
bonjour cette plaque se place au dessus d un meuble de quelle largeur ?
merci pour votre réponse
cordialement
7 De dong - 30/05/2017, 17:03
Bonjour,
J'hesite à acheter une hotte de plan classique, cette hotte de plan encastré dans la plaque ou une autre; sachant que je ne peux ni mettre de hotte plafonnier ni de hotte murale. La hotte sera sur un ilot; je n'ai pas de probleme de largeur d'ilot, et je peux éventuellement déporter le moteur et evacuer dans le garage en dessous. Que vaut cette hotte par rapport aux nouvelles hotte encastrées dans les plaques que vous vantez avec la marque Elica ou Siemens ?
8 De jean jacques BARBET - 27/01/2018, 12:32
bonjour
cette hotte est elle commercialisée ?